Проекты домов под ключ в Новгородской области

Проект каркасного дома Валуй – Новгородская область План дома
Валуй

Валуй — одноэтажный каркасный дом, построенный по СИП-технологии.

Стоимость от:

Каркасный дом Приток с мансардой и террасой, компактный в Новгородской области План первого этажа
Приток

Приток — компактный каркасный дом с мансардой, двускатной крышей и с фронтальной террасой

Стоимость от:

Проект Одноэтажного каркасного дома Амур с террасой и двускатной крышей в Новгородской области План дома
Амур

Амур — одноэтажный каркасный дом с двускатной крышей.

Стоимость от:

Современный проект дома с отделкой Кедрал — СИП-дом в Новгородской области План дома
Соларис

Соларис — современный загородный дом, построенный по СИП-технологии.

Стоимость от:

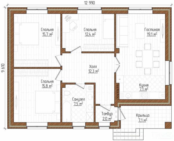
Дом построенный по СИП технологии – проект Горынево, Новгородская область Планировка дома, схема помещений
Горынево

Дом построенный по СИП технологиям в Новгородской области

Стоимость от:

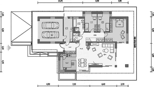
СИП дом Божонка – индивидуальный проект в Новгородской области План дома Божонка
Божонка

Просторный одноэтажный дом, облицованный под кирпич, сочетает современный стиль и уют.

Стоимость от:

Проект дома из СИП-панелей Хутынь – строительство в Новгородской области План дома
Хутынь

«Хутынь» — одноэтажный дом 100m² с двускатной крышей, доступен в вариантах из СИП-панелей и каркаса. Практичный выбор для семьи.

Стоимость от:

Дом Соколь из СИП панелей – проект под ключ, Новгородская область План дома
Соколь

Завершенный проект двухэтажного дома построенного по СИП-технологиям с гаражом и верандой в Новгородской области

Стоимость от: